top of page
Tous nos articles


Optimiser le rangement dans un appartement : méthode et solutions concrètes
Le manque de rangement est l'une des plaintes les plus fréquentes des habitants d'appartements — toutes surfaces confondues. Pourtant, dans la grande majorité des cas, le problème n'est pas un manque de volume de rangement. C'est un problème d'organisation et d'exploitation des espaces disponibles. Optimiser le rangement d'un appartement commence par une méthode — pas par un passage chez IKEA. 1. Faire l'inventaire avant d'acheter des solutions L'erreur classique : acheter d
![Photo du rédacteur: [AMI] AménageMonIntérieur](https://images-wixmp-7ef3383b5fd80a9f5a5cc686.wixmp.com/8a67703a-d877-437f-a6d5-3c247a1d53ce/1768822678866/v1/fill/w_320,h_320/file.jpg)
[AMI] AménageMonIntérieur
11 mars4 min de lecture


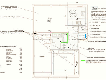
Plan intérieur appartement : comment le lire et s'en servir vraiment
On vous remet un plan d'appartement — que ce soit lors d'un achat immobilier, d'une location ou à l'issue d'une consultation avec un professionnel de l'aménagement. Et là, face à ce document, une question silencieuse : comment lire ça correctement ? Un plan intérieur d'appartement n'est pas réservé aux architectes. Savoir le déchiffrer, c'est comprendre son espace avant même d'y poser le pied — et prendre de meilleures décisions d'aménagement, d'achat ou de travaux. Voici to
![Photo du rédacteur: [AMI] AménageMonIntérieur](https://images-wixmp-7ef3383b5fd80a9f5a5cc686.wixmp.com/8a67703a-d877-437f-a6d5-3c247a1d53ce/1768822678866/v1/fill/w_320,h_320/file.jpg)
[AMI] AménageMonIntérieur
11 mars4 min de lecture


Aménager une petite salle de bain : maximiser chaque centimètre
La salle de bain est souvent la pièce la plus contrainte du logement. Surface réduite, équipements imposés, humidité, passages de gaines — les marges de manœuvre semblent limitées. Et pourtant, une petite salle de bain bien pensée peut être aussi fonctionnelle et agréable qu'une grande. Aménager une petite salle de bain efficacement ne demande pas de travaux lourds. Cela demande une réflexion rigoureuse sur chaque centimètre disponible — et quelques règles à appliquer dans l
![Photo du rédacteur: [AMI] AménageMonIntérieur](https://images-wixmp-7ef3383b5fd80a9f5a5cc686.wixmp.com/8a67703a-d877-437f-a6d5-3c247a1d53ce/1768822678866/v1/fill/w_320,h_320/file.jpg)
[AMI] AménageMonIntérieur
11 mars4 min de lecture


Rénovation appartement ancien : par où commencer sans se tromper
Rénover un appartement ancien, c'est l'un des projets les plus enthousiasmants — et l'un des plus risqués. Le potentiel est souvent réel : hauteur sous plafond, moulures, parquet d'origine, volumes généreux. Mais les pièges sont nombreux, et les erreurs de séquençage peuvent coûter très cher. La question que posent la plupart des propriétaires est toujours la même : par où commencer ? La réponse ne commence pas par les matériaux, ni par les artisans. Elle commence par une vis
![Photo du rédacteur: [AMI] AménageMonIntérieur](https://images-wixmp-7ef3383b5fd80a9f5a5cc686.wixmp.com/8a67703a-d877-437f-a6d5-3c247a1d53ce/1768822678866/v1/fill/w_320,h_320/file.jpg)
[AMI] AménageMonIntérieur
11 mars4 min de lecture


Aménagement intérieur maison : comment structurer les pièces de vie dès 100 m²
On imagine souvent que les problèmes d'aménagement sont réservés aux petites surfaces. C'est une idée reçue. Une maison de 100, 120 ou 150 m² mal structurée peut être tout aussi inconfortable qu'un studio encombré — simplement pour des raisons différentes. Trop de circulation, des pièces qui ne communiquent pas bien, des espaces de vie trop ouverts ou mal définis, des zones mortes inutilisées : ce sont les problèmes typiques d'un aménagement intérieur maison insuffisamment p
![Photo du rédacteur: [AMI] AménageMonIntérieur](https://images-wixmp-7ef3383b5fd80a9f5a5cc686.wixmp.com/8a67703a-d877-437f-a6d5-3c247a1d53ce/1768822678866/v1/fill/w_320,h_320/file.jpg)
[AMI] AménageMonIntérieur
11 mars4 min de lecture


Aménager une entrée d'appartement : petit espace, grand impact
L'entrée est la première pièce que vous voyez en rentrant chez vous — et la première que voient vos invités. Pourtant, c'est souvent l'espace le plus négligé du logement : un couloir encombré, un porte-manteau surchargé, des chaussures qui débordent. Aménager une entrée d'appartement correctement, c'est poser les bases d'un logement bien organisé. Et contrairement à ce qu'on imagine, quelques décisions bien pensées suffisent à transformer radicalement cet espace — même quand
![Photo du rédacteur: [AMI] AménageMonIntérieur](https://images-wixmp-7ef3383b5fd80a9f5a5cc686.wixmp.com/8a67703a-d877-437f-a6d5-3c247a1d53ce/1768822678866/v1/fill/w_320,h_320/file.jpg)
[AMI] AménageMonIntérieur
11 mars3 min de lecture


Aménager un salon en longueur : les solutions qui fonctionnent vraiment
Un salon en longueur est l'une des configurations les plus fréquentes dans les appartements français — et l'une des plus délicates à traiter. L'espace est souvent qualifié de "couloir", la circulation est inconfortable, et l'ensemble manque de cohérence. Pourtant, aménager un salon en longueur efficacement est tout à fait possible. Il s'agit avant tout de travailler contre l'axe dominant de la pièce — et de créer des zones d'usage distinctes qui structurent l'espace sans l'é
![Photo du rédacteur: [AMI] AménageMonIntérieur](https://images-wixmp-7ef3383b5fd80a9f5a5cc686.wixmp.com/8a67703a-d877-437f-a6d5-3c247a1d53ce/1768822678866/v1/fill/w_320,h_320/file.jpg)
[AMI] AménageMonIntérieur
11 mars3 min de lecture


Aménager une chambre adulte pour mieux dormir : les règles essentielles
La chambre est la pièce la plus intime du logement — et paradoxalement, celle à laquelle on consacre le moins de réflexion d'aménagement. On y pose un lit, une armoire, une table de nuit, et on considère que c'est suffisant. Pourtant, la qualité de votre sommeil dépend en grande partie de la façon dont votre chambre est organisée. Lumière, circulation, rangement, position du lit : chaque détail compte. Voici comment aménager sa chambre adulte pour en faire un vrai espace de
![Photo du rédacteur: [AMI] AménageMonIntérieur](https://images-wixmp-7ef3383b5fd80a9f5a5cc686.wixmp.com/8a67703a-d877-437f-a6d5-3c247a1d53ce/1768822678866/v1/fill/w_320,h_320/file.jpg)
[AMI] AménageMonIntérieur
11 mars4 min de lecture


Aménager sa cuisine en appartement : quelle configuration choisir ?
La cuisine est la pièce la plus technique d'un appartement. Chaque décision — emplacement des meubles, disposition des équipements, circulation — a un impact direct sur le confort quotidien. Pourtant, c'est souvent la pièce où les erreurs d'aménagement sont les plus fréquentes et les plus coûteuses à corriger. Aménager sa cuisine en appartement commence par une question simple : quelle configuration correspond à mon espace, à mes usages et à ma façon de cuisiner ? 1. La cuis
![Photo du rédacteur: [AMI] AménageMonIntérieur](https://images-wixmp-7ef3383b5fd80a9f5a5cc686.wixmp.com/8a67703a-d877-437f-a6d5-3c247a1d53ce/1768822678866/v1/fill/w_320,h_320/file.jpg)
[AMI] AménageMonIntérieur
11 mars3 min de lecture


Aménager un bureau pour le télétravail : le guide pratique
Le télétravail s'est installé durablement dans les habitudes. Pourtant, beaucoup travaillent encore depuis la table du salon, un coin du canapé, ou une chambre mal aménagée. Résultat : concentration difficile, fatigue accrue, frontière floue entre vie pro et vie perso. Aménager un bureau pour le télétravail ne demande pas forcément une pièce dédiée. Il exige surtout une réflexion d'aménagement sérieuse. 1. Identifier le bon emplacement Avant de choisir un bureau ou une chais
![Photo du rédacteur: [AMI] AménageMonIntérieur](https://images-wixmp-7ef3383b5fd80a9f5a5cc686.wixmp.com/8a67703a-d877-437f-a6d5-3c247a1d53ce/1768822678866/v1/fill/w_320,h_320/file.jpg)
[AMI] AménageMonIntérieur
11 mars3 min de lecture


Décoration intérieure en ligne : ce que vous pouvez vraiment obtenir
La décoration intérieure en ligne s'est considérablement développée ces dernières années. Plateformes, applications, consultations à distance — les offres se multiplient. Mais derrière la promesse d'un intérieur transformé depuis son canapé, la réalité est souvent plus nuancée. Qu'est-ce qu'on peut vraiment obtenir d'une consultation de décoration intérieure en ligne ? Quelles sont les limites ? Et comment distinguer un accompagnement sérieux d'une prestation superficielle ?
![Photo du rédacteur: [AMI] AménageMonIntérieur](https://images-wixmp-7ef3383b5fd80a9f5a5cc686.wixmp.com/8a67703a-d877-437f-a6d5-3c247a1d53ce/1768822678866/v1/fill/w_320,h_320/file.jpg)
[AMI] AménageMonIntérieur
9 mars3 min de lecture


Architecte d'intérieur en ligne : comment ça marche concrètement ?
Consulter un architecte d'intérieur en ligne — l'idée peut sembler contre-intuitive. Comment analyser un espace sans y être ? Comment concevoir un aménagement sans mesurer soi-même ? Comment obtenir un résultat professionnel depuis un écran ? Ces questions sont légitimes. Les réponses sont simples. Et après 40 ans dans le bâtiment et l'aménagement intérieur, je peux vous dire que la consultation en ligne n'est pas un compromis — c'est souvent plus efficace qu'une visite physi
![Photo du rédacteur: [AMI] AménageMonIntérieur](https://images-wixmp-7ef3383b5fd80a9f5a5cc686.wixmp.com/8a67703a-d877-437f-a6d5-3c247a1d53ce/1768822678866/v1/fill/w_320,h_320/file.jpg)
[AMI] AménageMonIntérieur
9 mars3 min de lecture


Cuisine ouverte ou fermée : comment choisir selon son espace
Ouvrir la cuisine sur le séjour ou la garder fermée — c'est l'une des questions les plus fréquentes lors d'un projet d'aménagement. Et c'est souvent mal posée. La bonne question n'est pas "laquelle est plus belle ?" mais "laquelle correspond à mon espace, mes usages et mes contraintes ?" La réponse dépend de trois facteurs : la configuration du bien, les habitudes de vie, et les contraintes techniques. Voici comment trancher. Ce que change vraiment l'ouverture d'une cuisine O
![Photo du rédacteur: [AMI] AménageMonIntérieur](https://images-wixmp-7ef3383b5fd80a9f5a5cc686.wixmp.com/8a67703a-d877-437f-a6d5-3c247a1d53ce/1768822678866/v1/fill/w_320,h_320/file.jpg)
[AMI] AménageMonIntérieur
9 mars3 min de lecture


Studio, T2, T3 : quel aménagement est vraiment possible ?
"Avec cette surface, on ne peut pas faire grand chose." Faux. Dans la quasi-totalité des cas, ce n'est pas la surface qui limite — c'est la configuration et l'implantation. L'aménagement studio T2 T3 ne se résume pas à une question de surface — un studio bien pensé surpasse un T2 mal agencé.. Un T3 sous-exploité donne l'impression d'un appartement étriqué malgré ses mètres carrés. La vraie question n'est pas "quelle surface j'ai ?" mais "qu'est-ce que cette surface autorise r
![Photo du rédacteur: [AMI] AménageMonIntérieur](https://images-wixmp-7ef3383b5fd80a9f5a5cc686.wixmp.com/8a67703a-d877-437f-a6d5-3c247a1d53ce/1768822678866/v1/fill/w_320,h_320/file.jpg)
[AMI] AménageMonIntérieur
9 mars4 min de lecture


Avant/après aménagement d'un studio de 45 m² transformé en T2 sans abattre un mur
Un studio de 45 m² à Lyon, 5e arrondissement. Une grande pièce unique peu structurée, une petite cuisine fermée dans l'ancien cellier, pas de salle de bain digne de ce nom. Le client veut en faire un vrai T2 — chambre fermée, cuisine ouverte sur le séjour, salle de bain complète. Budget : 60 000 €. Contrainte principale : des descentes d'eaux pluviales à contourner. Voici comment ce projet a été conçu, et ce qu'il enseigne sur le potentiel caché des studios mal configurés. L
![Photo du rédacteur: [AMI] AménageMonIntérieur](https://images-wixmp-7ef3383b5fd80a9f5a5cc686.wixmp.com/8a67703a-d877-437f-a6d5-3c247a1d53ce/1768822678866/v1/fill/w_320,h_320/file.jpg)
[AMI] AménageMonIntérieur
9 mars3 min de lecture


Optimiser un bien locatif pour le loue r plus cher : ce qui change vraiment.
Un bien locatif bien aménagé se loue plus vite, plus cher, et génère moins de vacance locative. C'est un fait documenté sur le marché — et pourtant, la majorité des investisseurs négligent l'aménagement au moment de la mise en location. La raison est simple : on pense travaux, on pense budget, on pense délais. Mais optimiser un bien locatif ne nécessite pas forcément de gros travaux. Dans la plupart des cas, ce sont des choix d'implantation, de mobilier et de présentation qui
![Photo du rédacteur: [AMI] AménageMonIntérieur](https://images-wixmp-7ef3383b5fd80a9f5a5cc686.wixmp.com/8a67703a-d877-437f-a6d5-3c247a1d53ce/1768822678866/v1/fill/w_320,h_320/file.jpg)
[AMI] AménageMonIntérieur
9 mars3 min de lecture


Les 5 erreurs d'aménagement qui font rater un achat immobilier
Acheter un bien immobilier sans anticiper son aménagement, c'est prendre un risque réel. Pas forcément le risque d'un mauvais achat — mais celui de se retrouver dans un espace qui ne fonctionne pas, avec des travaux imprévus et un budget qui dérape. Voici les 5 erreurs d'aménagement, qui font rater un achat immobilier, les plus fréquentes que j'observe en 40 ans d'expérience dans le bâtiment et l'aménagement intérieur. Elles sont évitables. Toutes. Erreur 1 — Acheter sur le
![Photo du rédacteur: [AMI] AménageMonIntérieur](https://images-wixmp-7ef3383b5fd80a9f5a5cc686.wixmp.com/8a67703a-d877-437f-a6d5-3c247a1d53ce/1768822678866/v1/fill/w_320,h_320/file.jpg)
[AMI] AménageMonIntérieur
9 mars3 min de lecture


Comment évaluer le potentiel d'un appartement avant de l'acheter
Vous visitez un appartement. La lumière est belle, le quartier vous plaît, le prix est dans votre budget. Mais quelque chose vous retient — une pièce trop sombre, une configuration bizarre, un espace qui ne semble pas fonctionner. Est-ce rédhibitoire ? Ou est-ce transformable ? C'est la question que tout acheteur devrait se poser avant de signer. Et c'est précisément ce qu'un architecte d'intérieur est formé à évaluer. Ce que "potentiel" veut vraiment dire Le potentiel d'un b
![Photo du rédacteur: [AMI] AménageMonIntérieur](https://images-wixmp-7ef3383b5fd80a9f5a5cc686.wixmp.com/8a67703a-d877-437f-a6d5-3c247a1d53ce/1768822678866/v1/fill/w_320,h_320/file.jpg)
[AMI] AménageMonIntérieur
9 mars3 min de lecture


Aménagement intérieur sans travaux : réorganiser son appartement, par où commencer ?
Vous avez l'impression que votre appartement est trop petit, mal rangé, ou simplement inconfortable — mais vous ne voulez pas (ou ne pouvez pas) engager des travaux. Bonne nouvelle : dans la majorité des cas, le problème n'est pas la surface. C'est l'implantation. Un espace mal organisé donne une sensation d'oppression, de désordre permanent, de manque de place. Un espace bien pensé — même identique au mètre carré près — respire, fonctionne, et change le quotidien. Voici comm
![Photo du rédacteur: [AMI] AménageMonIntérieur](https://images-wixmp-7ef3383b5fd80a9f5a5cc686.wixmp.com/8a67703a-d877-437f-a6d5-3c247a1d53ce/1768822678866/v1/fill/w_320,h_320/file.jpg)
[AMI] AménageMonIntérieur
9 mars3 min de lecture


Acheter un bien immobilier sans se tromper : l'intérêt d'un architecte d'intérieur en visio
Acheter un appartement ou une maison, c'est souvent la décision financière la plus engageante d'une vie. Pourtant, lors d'une visite immobilière, il est difficile de voir au-delà de l'existant. Une pièce sombre, une circulation mal pensée, une cloison qui semble impossible à bouger — et le potentiel réel du bien vous échappe complètement. C'est précisément là qu'intervient l'architecte d'intérieur. Pas pour décorer : pour analyser, lire l'espace, et vous donner les éléments c
![Photo du rédacteur: [AMI] AménageMonIntérieur](https://images-wixmp-7ef3383b5fd80a9f5a5cc686.wixmp.com/8a67703a-d877-437f-a6d5-3c247a1d53ce/1768822678866/v1/fill/w_320,h_320/file.jpg)
[AMI] AménageMonIntérieur
17 janv.3 min de lecture
bottom of page
